| ☆ 今ならエアコン1台サービス!! ☆ | |||
| 価格 | 2380万円(税込)![]() |
地籍 | 161.63㎡(48.89坪) |
|---|---|---|---|
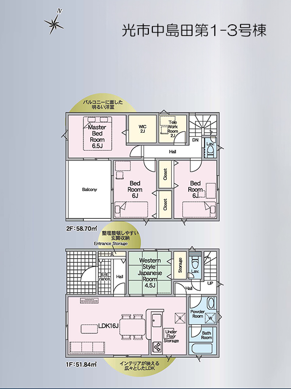
| 間取り | 4LDK+WIC+ テレワークルーム |
物件No | 6853 |
光市中島田第1-3号棟
| 駐車場 | 2台可能 | 建物面積 | 108.54㎡(32.83坪) |
| 備考 | 【住宅設備・仕様】IHシステムキッチン、大型ユニットバス(浴室乾燥機付) エコキュート温水システム、シャワー付洗面化粧台、ウォシュレットトイレ TVモニター付インターホン、人感センサーライト、防犯カメラ ペアガラス、外装・外構工事(1式) 【公法制限】建基法22条指定区域、宅地造成等工事規制区域 【その他制限事項】共有地69.53㎡持分1/2(内建築確認申請除外面積10.43㎡) |
||
| 用途地域 | 第1種住居 | 地目 | 宅地 | 築年月 | 令和8年6月予定 |
| 建ぺい率 | 60% | 容積率 | 200% | 構造 | 木造2階建 |
| 道路 | 公道 | 接道 | 北西側約6.02m | 引渡し | 相談 |
| 小学校 | 島田小学校 | 中学校 | 島田中学校 | 権利 | 所有権 |
| 設備 | 公営水道 公共下水 オール電化 |
交通 | 島田駅より 徒歩約27分 |
取引態様 | 仲介 |


.jpg)
.jpg)
.jpg)
.jpg)
.jpg)
.jpg)
.jpg)
.jpg)
